
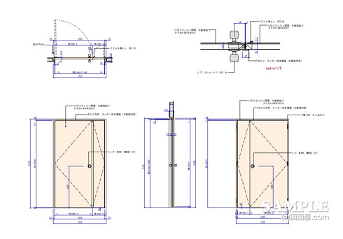
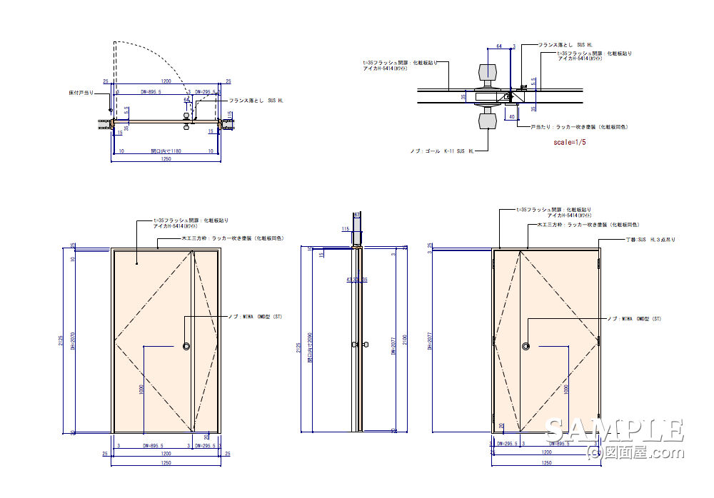
■サイズ
| ■仕様 |
W1250×D115×H2125 図面参照 | 本体:t=35フラッシュ化粧板貼仕上げ |
■備考 【WJ_000】は木製建具の略語 *製作図:2010.04 |
今回は、初心者の読者さんのために、木製建具の開き戸、それも親子ドアの図面事例をご紹介します。基本さえ分かれば、それほど難しい図面ではありません。
特に、説明の必要はいらない?と感じますが、
参考図無しで「建具図面」を描け!って言われても困るな〜なんて方はしっかりお勉強しましょう。
それでは続きをどうぞ!
応援、宜しくお願いします! ↓ ↓ ↓
デザインランキング
にほんブログ村
●スポンサードリンク
下記に平面詳細図を添付しておきましたので、まずは、隅々まで、しっかり読み込んで理解するようにしましょう。

どうですか? しっかり読み込めて理解した人は、この程度の図面については卒業ですので、
もっとややこしい建具図面に進んでください。
この図面で気になったこと言えば、戸当たりです。
仕様全てが木製はいいのですが、この戸当たりだけは、スチールにすれば良かったと感じます。と言うのもやはり、使用頻度が高く、開け閉めの時を考えるとちょっと怖いような気もします。
もうかなりの図面ですので、竣工後は記憶はありませんが今でも、この図面を見るとちょっと気が重くなります。
もう永く図面を描いていると、これで
絶対大丈夫なんて言えないことばかりで、この年になってもべんきょうだな〜って思います。
木製親子ドア の 図面事例は、どうでした?
何にでもそうなんですが、この仕事をしていると、基本的なことは付いて回りますので、
今回の図面事例を、しっかり身につけ素晴らしい図面屋になってください。
応援、宜しくお願いします! ↓ ↓ ↓
デザインランキング
にほんブログ村