
| ■Data |
| ■サイズ | ■仕様 |
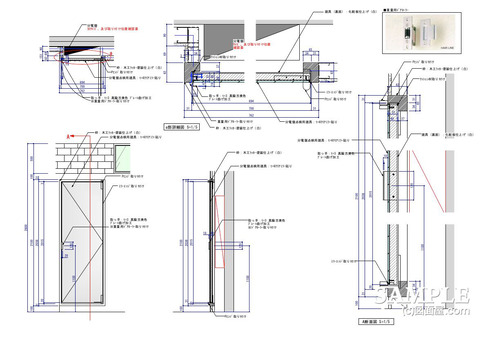
W×D×H 図面参照 | 建具本体:木下地t=5mmクリアミラー貼り |
■備考 作図:2013.02 業態:アパレル全般 |
【作図解説】店舗内に必ずとは言いませんが、ときに店内に分電盤という代物が、露出されていることが度々あります。
今回の図面もまさのその分電盤が壁面に配置されその店舗でした。
店内にストックルームなどがあれば、壁面造作で隠すことは可能ですが、最近の店舗には面積的に余裕がなかったようです。
そこで考えたのが、この作図事例です。
それでは、続きをご覧ください!応援よろしくお願いします ↓ ↓ ↓
デザインランキング
●スポンサードリンク【作図ポイント】
分電盤をそのまま店舗内にむき出しは出来きないので、ミラー付建具でカバーする事を考えました。
これだと、姿見が一枚追加された状態だし、店舗としてもよいと結果を生むとも感じました。
またこの店舗では、照明その他の電源をこの分電盤でオンオフします。ちなみに、これを盤切りって言ってます。
店舗によってまちまちですが、この盤切りは良くあるケースです。
特に24時間稼動しているレジ等を設置していない店舗では、あえてスイッチを設けず、この方式ですることは多い思います。
その分、建具の開け閉めの頻度はかなり高くなるので、重量要ドアローラーとPヒンジを使用いました。
悩んだのは、前面がミラーと言うことです。
目立つハンドル類などはもってのほかです。
そこでt=3mmのスチールプレートの曲げ加工で、取っ手の代わりになるものを工夫してみましたが、この程度だと目立たないでしょう。
結構よいアイデアと思ってますが、如何でしょう! 出来れば参考になさってみてはどうでしょう。
尚、詳細図も載せておきます。

※平面詳細図ですが、この程度の図面は、必要でしょう。

※縦断面の詳細図です。
しっかり、理解してください!
余田和でした。
応援よろしくお願いします ↓ ↓ ↓
デザインランキング