
■サイズ
| ■仕様 |
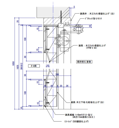
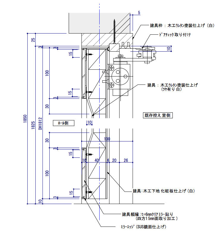
W700×D100×H1850 図面参照 | 枠:木工ウレタン塗装仕上げ 建具:木工ウレタン塗装仕上げ+t=5mmクリアミラー貼り(四方面取り加工)
|
■備考
|
この作図事例は.かなり前の2000年にブライダル関連に携わっていたときに描いた図面です。
当時はブライダルブームで私もこの年に何件かの物件を携わりました。
さてこの建具と言えば、チャペルの牧師さんの控え室に取り付けたもですが、さすがブライダルだけあってそのフォルムには金を惜しまないといった感じがします。
もちろんカラーリングは白一色ですが、四方にミラー貼りを施しましたので、豪華さはかなり助長されました。
続きに、この
建具の詳細などがありますのでご覧下さい!
頑張ってます!↓ ↓ ↓
デザインランキング
にほんブログ村
●スポンサードリンク
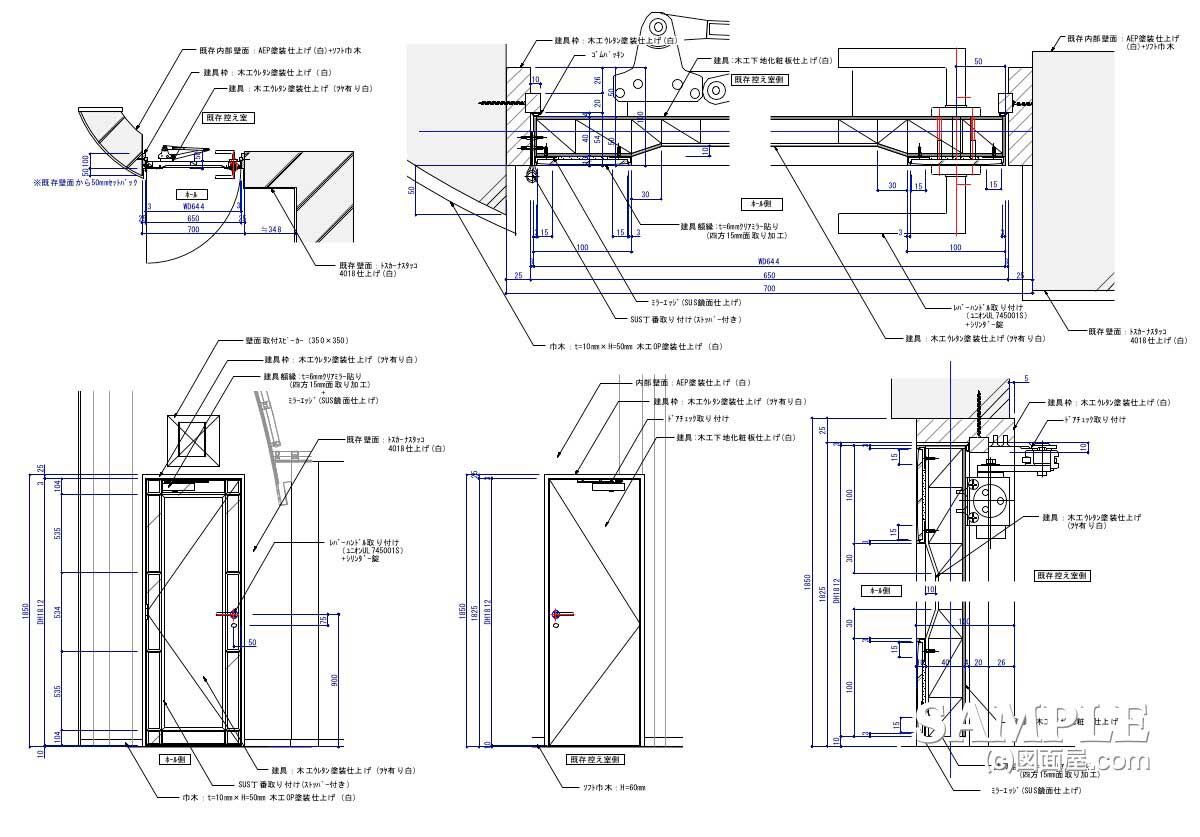
下記は、平面詳細図ですが図面的にはこの程度は欲しいですね!表現は別としてしっかり描けていて及第点をあげても良いでしょう。

建具の四方に廻されたミラーですが、これがまた金の掛かる仕様にとなっていて、こちらも四方が面取り加工としました。おまけに突き合わせでの収めです。
その様子が、以下の断面詳細図で読み取ることが出来ますね!

一体、いくら掛かったかは知る良いも無い私でしたが、仕上がったときはちょっと嬉しく思いました。
建具も、何枚も描いているとこの程度の収めは誰にでも描けます。しかも一枚描いてアバウト10,000円程度は頂けます。(良いアルバイトです)
ここで意識したのは、チャペル内ということで
「音」に付いては気を遣いました。建具が閉まる
「音」でもその場の雰囲気を壊してしまう事もあるからです。
ですから、枠の戸当たりには
吸音性のあるゴムパッキンを取り付ける事、そして
ドアスチェックが必須です。
ドアチェックを取り付ける事で、建具の速度を調整し、静かに閉まるようにできます。
尚かつ、
蝶番もストッパー付きのものにして建具の開く最大角度を調整して、廻りの物に当たってしまう事を抑制します。
このように戸当たりの
ゴムパッキン、ストッパー付き蝶番、ドアチェックの3つがあれば建具から発せられる
「音」を殆ど無くす事が出来ますので、覚えておいてくださいね。
応援、宜しくお願い致します。頑張ってます!↓ ↓ ↓
デザインランキング
にほんブログ村